Oferta nr IGM-BS-20077

cena 10800000 zł
rodzaj Obiekt
typ Sprzedaż
lokalizacja: Wrocław, Stare Miasto
powierzchnia 654.00 m2
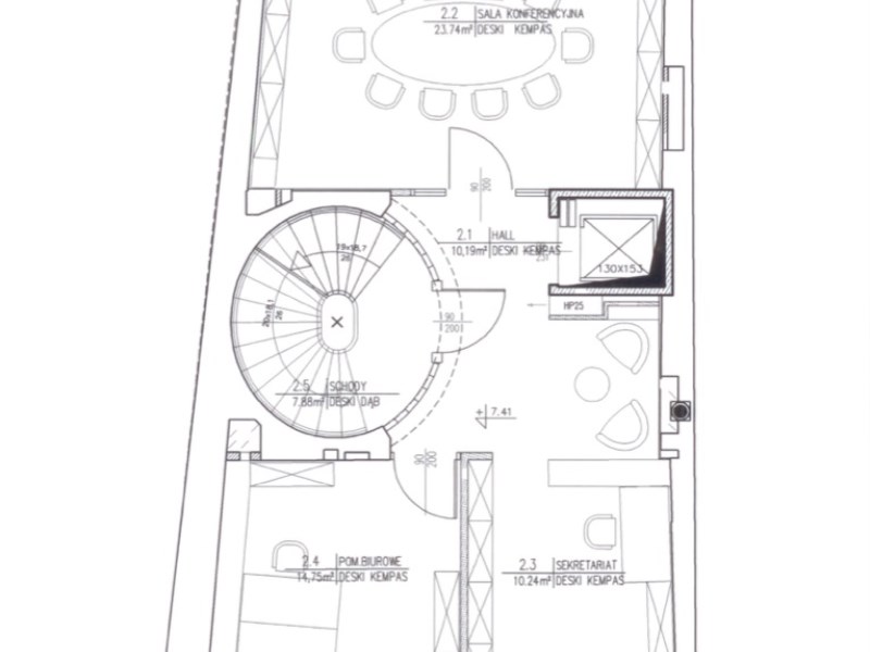
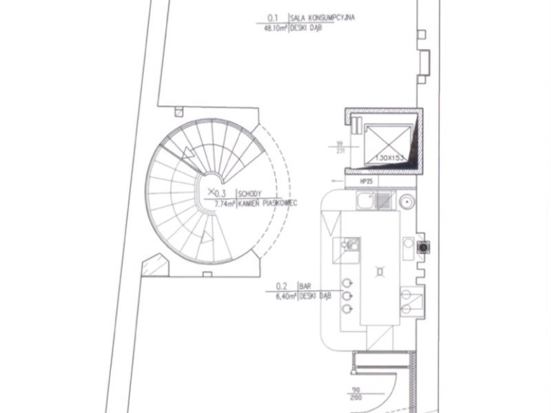
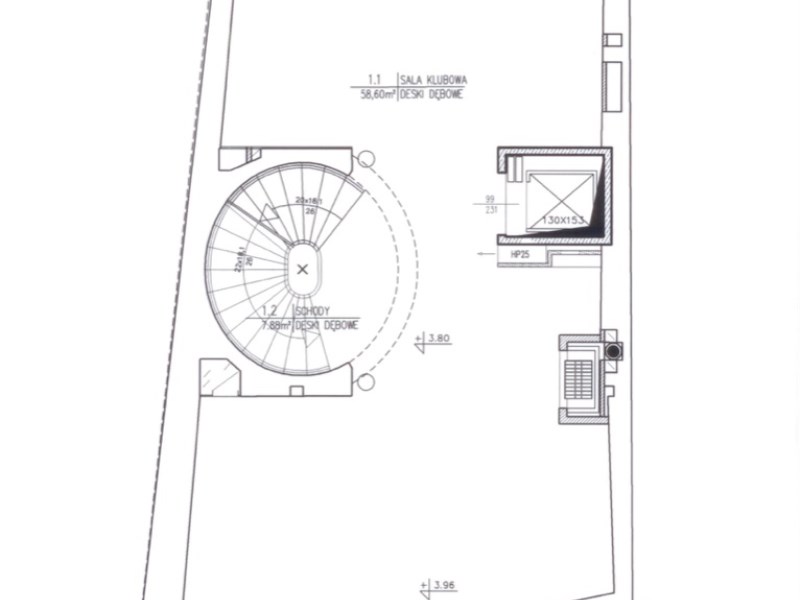
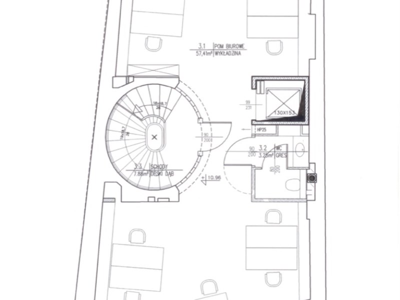
Ogłoszenie sprzedaży kamienicy w centrum Wrocławia Przedmiotem sprzedaży jest kameralna kamienica zlokalizowana na Starym Mieście, w bezpośrednim sąsiedztwie Rynku. Budynek przeszedł generalny remont, co zapewnia wyjątkowo wysoki standard wykończenia. Nieruchomość aktualnie jest w pełni wynajmowana, co stanowi atrakcyjną propozycję inwestycyjną. Dane ogólne: Powierzchnia całkowita: 654 m² Powierzchnia użytkowa: 458,9 m² Kubatura: 1980 m³ Liczba kondygnacji: 7 + antresola Szczegółowy opis nieruchomości: Kondygnacja -1: Powierzchnia 54,37 m²; funkcja socjalna (kuchnia, garderoba, 2 WC). Parter: Powierzchnia 62,6 m²; reprezentacyjna recepcja oraz sala konferencyjna. I-IV piętro: Lokale biurowe o powierzchni około 67 m² każdy. V piętro: Komfortowy apartament dwupoziomowy z tarasem i panoramicznymi oknami, oferujący piękny widok na panoramę miasta i rzekę. Meble w zabudowie na wymiar, wysoki standard wykończenia. Możliwości adaptacyjne: Budynek jest idealnym miejscem na modną siedzibę firmy - biura projektowego, firmy informatycznej, czy kancelarii prawnej lub usługi. Dzięki swojej lokalizacji i wyjątkowemu charakterowi, nieruchomość doskonale nadaje się również do przekształcenia na hostel. Luksusowy apartament na szczycie budynku stanowi dodatkowy atut, oferując przestrzeń mieszkalną o najwyższym standardzie. Przeznaczenie nieruchomości: Nieruchomość objęta jest Miejscowym Planem Zagospodarowania Przestrzennego, z przeznaczeniem na zabudowę wielorodzinną oraz usługi centrotwórcze, co daje szerokie możliwości dalszego rozwoju i adaptacji. Zapraszam do kontaktu oraz na prezentację tej wyjątkowej nieruchomości. Niniejsze ogłoszenie nie stanowi oferty, jest jedynie zaproszeniem do rokowań.

dane agenta Marlena Joks
licencja: 7915
690210963
wyślij email

Wyszukiwarka

Mieszkania na sprzedaż

Mieszkania na wynajem

Domy na sprzedaż

Domy na wynajem

Działki na sprzedaż

Działki na wynajem

Lokale na sprzedaż

Lokale na wynajem

Hale na sprzedaż

Hale na wynajem

Obiekty na sprzedaż

Obiekty na wynajem

O firmie

Kontakt

przejdź do pełnej wersji strony
zobacz także
© Iglica mobile
wykonanie: Aplikacje internetowe Galactica