Oferta nr IGM-LW-20738
| cena | 10287 zł |
| rodzaj | Lokal |
| typ | Wynajem |
| rodzaj budynku: | biurowiec |
| lokalizacja: | Wrocław, Krzyki |
| powierzchnia | 165.76 m2 |
|
Nowoczesna powierzchnia biurowa w prestiżowej lokalizacji
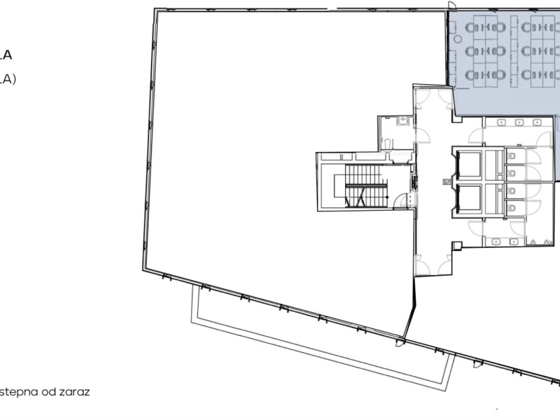
Oferujemy do wynajęcia przestronną powierzchnię biurową o łącznej powierzchni brutto 165,76 m² (netto 139,50 m²) w nowoczesnym budynku klasy A, zlokalizowanym w sercu Wrocławia. Budynek wyróżnia się nowoczesną architekturą i wysokim standardem wykończenia, zapewniając komfortowe warunki pracy.
Układ i funkcjonalność
Powierzchnia składa się z przestronnego open space oraz dwóch osobnych pomieszczeń, które idealnie nadają się na gabinety. Dodatkowo, w obrębie biura znajduje się kuchnia, co zwiększa komfort codziennego użytkowania oraz serwerownia.
Korzyści z użytkowania biura
Wysoki standard wykończenia: Budynek wyposażony jest w nowoczesne instalacje, klimatyzację oraz okablowanie strukturalne, co zapewnia komfort i efektywność pracy.
Certyfikat LEED Gold: Obiekt posiada prestiżowy certyfikat ekologiczny LEED na poziomie złotym, co świadczy o zastosowaniu energooszczędnych i przyjaznych środowisku rozwiązań.
Dostępność komunikacyjna: Lokalizacja zapewnia doskonały dostęp do komunikacji miejskiej oraz głównych arterii komunikacyjnych miasta, co ułatwia dojazd pracownikom i klientom.
Otoczenie biznesowe: W sąsiedztwie znajdują się liczne biura, instytucje finansowe oraz obiekty handlowe i usługowe, co sprzyja rozwojowi działalności gospodarczej.
Elastyczność aranżacji: Dzięki przemyślanemu układowi przestrzeni, istnieje możliwość dostosowania biura do indywidualnych potrzeb najemcy.
Koszty:
Czynsz najmu: 14,50 €/mkw GLA
Minimalny okres najmu: 3 lata
service charge: 31 PLN
Podane kwoty są kwotami netto.
Przestrzeń może być dostosowana do potrzeb najemcy.
Serdecznie polecam i zapraszam!
Katarzyna Stawieraj
514-706-686
Iglica Nieruchomości
ul. Zaolziańska 1
53-334 Wrocław
https://my.matterport.com/show/?m=4q4YoiczDPD |
|
| dane agenta | Katarzyna Stawieraj |
| licencja: | 2404 |
| 514706686 | |
| wyślij email | |
