Oferta nr IGM-LW-21208

cena 11502 zł
rodzaj Lokal
typ Wynajem
rodzaj budynku: apartamentowiec
lokalizacja: Wrocław, Krzyki
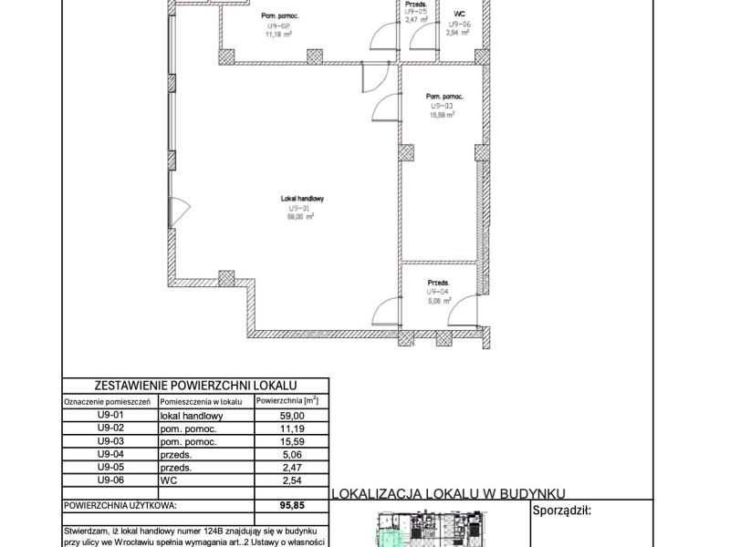
powierzchnia 95.85 m2
Na wynajem nowy lokal  ul. Ślężna, Nowy lokal handlowo-usługowy w inwestycji Ślężna Vita w prestiżowej części dzielnicy Krzyki. Budynek zrealizowany przez  markowego dewelopera  Develia. Lokal idealny pod działalność handlową, usługową, gastronomiczną czy biurową. Położony na parterze, dobrze widoczny z ulicy Ślężnej w obu kierunkach. Szczegóły oferty: Powierzchnia: 96 m² Przynależne dwa miejsca postojowe w hali garażowej Wysokość lokalu: 3,32 m (w miejscach z obniżonym stropem: 2,95 m) Standard wykończenia: deweloperski Parking dla klientów: w sąsiedztwie duży parking z parkometrem Atuty lokalizacji: Prestiżowa dzielnica Krzyki, jedna z najbardziej pożądanych lokalizacji we Wrocławiu Blisko głównych arterii: Ślężna, Armii Krajowej, Wiśniowa Parter inwestycji Ślężna Vita, która obejmuje 199 mieszkań W sąsiedztwie osiedle Centauris (450 mieszkań) oraz Apartamenty Wiśniowa (248 mieszkań) Obok biurowiec Ślężna Park  Stacje paliw W promieniu 1,5 km: Uniwersytet Ekonomiczny, szpital przy ul. Borowskiej, Wojskowy Szpital Kliniczny przy ul. Weigla Opcje wynajmu: Cena najmu:120 zł Netto Cztery miejsca postojowe przynależne do lokalu płatne osobno Uwagi dodatkowe: W tej inwestycji oferujemy również inne lokale o metrażach od 58 m² do 96 m². Niniejsze ogłoszenie nie stanowi oferty handlowej w rozumieniu art. 66 § 1 Kodeksu cywilnego, lecz ma charakter wyłącznie informacyjny. Iglica Nieruchomości jest partnerem komercjalizacji. Zapraszamy do kontaktu oraz wizyty w biurze przy ulicy Zaolziańskiej 1, Ww gdzie dostępne są rzuty techniczne lokali oraz parkingu.   

dane agenta Marta Paliga
licencja:
514706682
wyślij email

Wyszukiwarka

Mieszkania na sprzedaż

Mieszkania na wynajem

Domy na sprzedaż

Domy na wynajem

Działki na sprzedaż

Działki na wynajem

Lokale na sprzedaż

Lokale na wynajem

Hale na sprzedaż

Hale na wynajem

Obiekty na sprzedaż

Obiekty na wynajem

O firmie

Kontakt

przejdź do pełnej wersji strony
zobacz także
© Iglica mobile
wykonanie: Aplikacje internetowe Galactica