Oferta nr IGM-LS-21290

cena 2179350 zł
rodzaj Lokal
typ Sprzedaż
rodzaj budynku: biurowiec
lokalizacja: Wrocław, Stare Miasto, Włodkowica
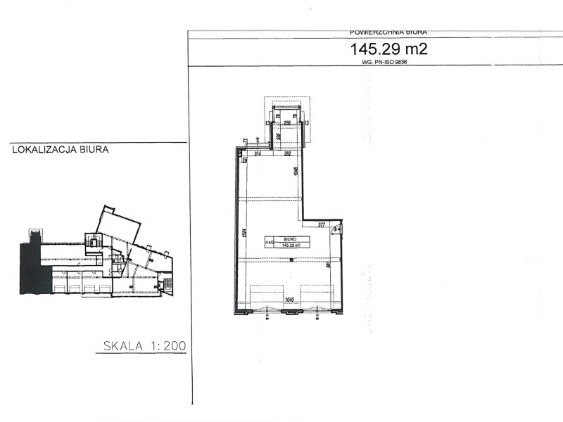
powierzchnia 145.29 m2
Biuro z widokiem na park przy Fosie Miejskiej / na sprzedaż Na sprzedaż wyjątkowy lokal biurowy o powierzchni 145 m², położony przy ul. Włodkowica we Wrocławiu. To prestiżowy adres w centrum miasta, który łączy reprezentacyjny charakter z rzadko spotykanym komfortem pracy w otoczeniu zieleni. Wyróżnikiem tej nieruchomości jest duża przeszklona ściana z widokiem na park przy Fosie Miejskiej oraz prywatny ogród. Dzięki temu lokal zyskuje światło, przestrzeń i atmosferę, która sprzyja zarówno codziennej pracy, jak i spotkaniom z klientami. Wnętrze zostało funkcjonalnie podzielone na reprezentacyjną salę, salkę konferencyjną, strefę recepcji oraz dwa gabinety. To układ idealny dla kancelarii, firmy doradczej, biura projektowego, showroomu lub siedziby spółki, która szuka miejsca o wysokim standardzie i odpowiedniej randze. Dodatkowym atutem są toalety wygodnie zlokalizowane w częściach wspólnych, winda oraz parking podziemny. Do lokalu przynależą również dwa miejsca postojowe na duże samochody, każde w dodatkowej cenie 100.000 PLN netto. To propozycja dla tych, którzy szukają biura eleganckiego, funkcjonalnego i zapamiętywalnego — miejsca, które od pierwszego kontaktu buduje właściwe wrażenie. OFERTA NA WYŁĄCZNOŚĆ ZAPRASZAMY DO KONTAKTU

dane agenta Krzysztof Jabłoński
licencja: 7313
514706680
wyślij email

Wyszukiwarka

Mieszkania na sprzedaż

Mieszkania na wynajem

Domy na sprzedaż

Domy na wynajem

Działki na sprzedaż

Działki na wynajem

Lokale na sprzedaż

Lokale na wynajem

Hale na sprzedaż

Hale na wynajem

Obiekty na sprzedaż

Obiekty na wynajem

O firmie

Kontakt

przejdź do pełnej wersji strony
zobacz także
© Iglica mobile
wykonanie: Aplikacje internetowe Galactica